Espace propriétaire
fr
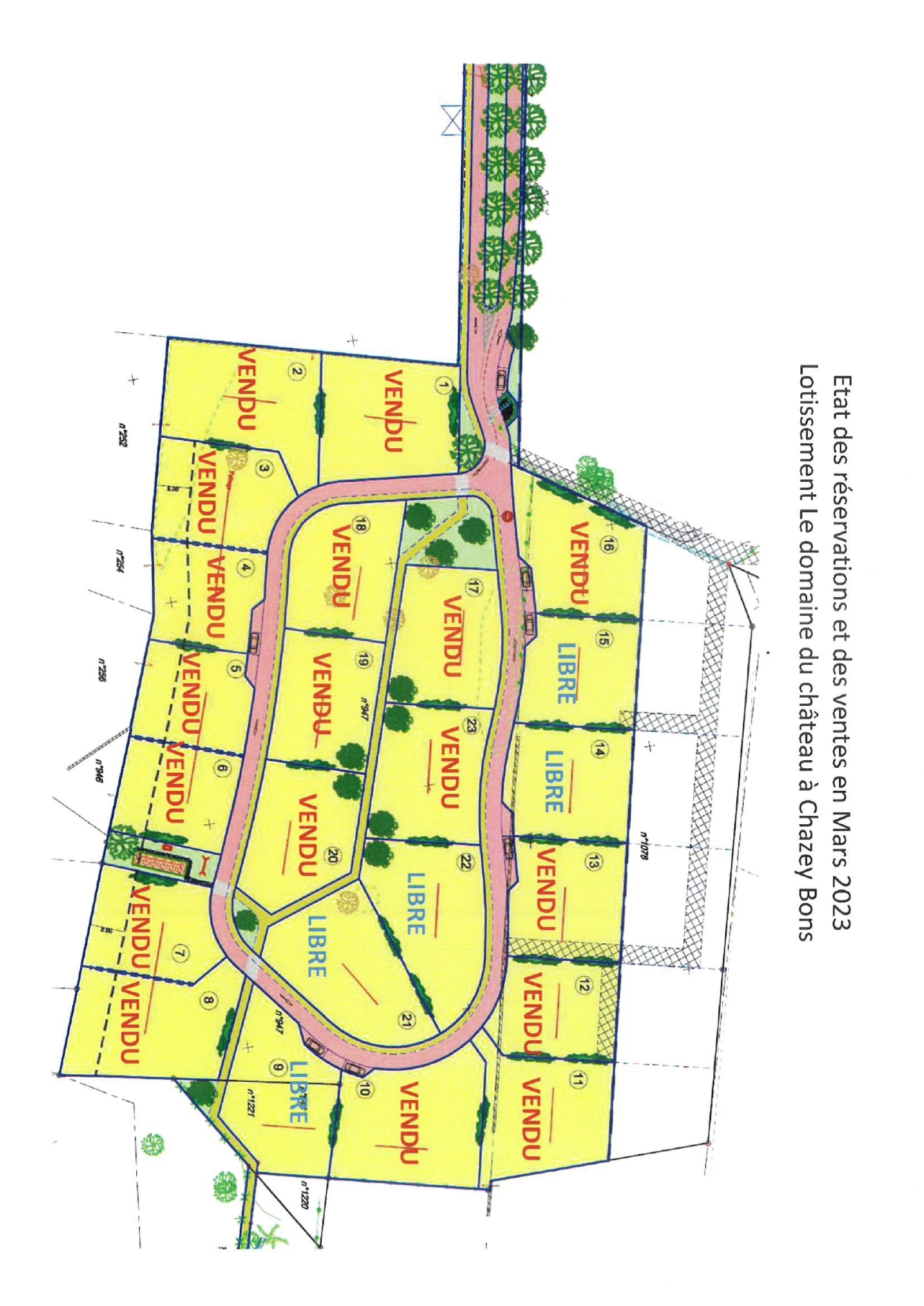
Chazey-Bons (01300)

Terrain constructible de 823 m² Lot 22

108 000 €
Ref : 140
A propos de ce bien

Votre agence IMMO CONNECTION vous propose à la vente ce terrain viabilisé de 823 m² dans un lotissement haut de gamme "Domaine du chateau" sur la commune de Chazey bons à 3min du centre ville de Belley. Terrain viabilisé et libre de tout constructeur.

Alors n'hésitez plus et contacter IMMO CONNECTION pour organiser une visite ! Les honoraires sont à la charge vendeur. Les informations sur les risques auxquels ce bien est exposées sont disponibles sur le site Géorisques : www.georisques.gouv.fr.

Descriptif de ce bien
Général
Code postal 01300
Surface habitable (m²) 823 m²
surface terrain 823 m²
Nombre de pièces 1
Terrain constructible OUI
Surface constructible 823
Détails
Exposition Nord-Sud
Terrain arboré NON
Terrain Viabilisé OUI
Terrain Cloturé NON
Tout à l'égout OUI
Raccordement eau OUI
Raccordement électricité OUI
Raccordement téléphone OUI
Financier
Prix de vente 108 000 €
Les honoraires d'agence seront intégralement à la charge du vendeur  
Autour du bien
  • Commerces et santé
  • Loisirs
  • Ecoles
  • Transports
  • Pratique
Contacter pour ce bien
L'agence
Téléphone 0487334661
Adresse
15 Quai Edouard Serullaz 01420 Seyssel

* Champ obligatoire

Les informations recueillies sur ce formulaire sont enregistrées dans un fichier informatisé par La Boite Immo agissant comme Sous-traitant du traitement pour la gestion de la clientèle/prospects de l'Agence / du Réseau qui reste Responsable du Traitement de vos Données personnelles. La base légale du traitement repose sur l'intérêt légitime de l'Agence / du Réseau. Elles sont conservées jusqu'à demande de suppression et sont destinées à l'Agence / au Réseau. Conformément à la loi « informatique et libertés », vous disposez des droits d’accès, de rectification, d’effacement, d’opposition, de limitation et de portabilité de vos données. Vous pouvez retirer votre consentement à tout moment en contactant directement l’Agence / Le Réseau. Consultez le site https://cnil.fr/fr pour plus d’informations sur vos droits. Si vous estimez, après avoir contacté l'Agence / le Réseau, que vos droits « Informatique et Libertés » ne sont pas respectés, vous pouvez adresser une réclamation à la CNIL. Nous vous informons de l’existence de la liste d'opposition au démarchage téléphonique « Bloctel », sur laquelle vous pouvez vous inscrire ici : https://www.bloctel.gouv.fr Dans le cadre de la protection des Données personnelles, nous vous invitons à ne pas inscrire de Données sensibles dans le champ de saisie libre.
Ce site est protégé par reCAPTCHA, les Politiques de Confidentialité et les Conditions d'Utilisation de Google s'appliquent.

Découvrir nos outils